Otago University Flats for sale

powered by Open2view.com

118 Forfar Street

Otago
2
1
N/A
N/Asqm
N/Asqm
118 Forfar Street Otago
proudly marketed by
Wayne Graham Realty Limited MREINZ
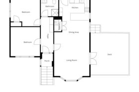
Entertainers’ Delight in Popular Mornington
Perched in the highly sought-after suburb of Mornington, this elevated 1930s brick home captures sweeping views of the harbour and open sea. A perfect opportunity for first-home buyers, investors, or professional couples, it combines classic charm with a practical, low-maintenance layout. Set within excellent school zones, this home offers two comfortable bedrooms and a modern, well-appointed bathroom. The light-filled open-plan living area flows seamlessly onto a generous deck, ideal for entertaining friends and family or simply enjoying the sun with a morning coffee. The location is equally impressive, with Mornington's local amenities just a short stroll away -- including a supermarket, café, medical centre, and more -- providing ultimate convenience while maintaining a quiet, elevated position. With its blend of lifestyle, location, and character, this home represents an exceptional opportunity not to be missed.
Question
Location
Upload by Ewen Livingstone
Otago and Southland
This property was photographed by